Эффективность использования площадей помещений и здания зависит от многих факторов, в том числе от их планировки. В 2020 году ООО «Смарт Вэй» подготовило комплект документов на перепланировку в административном здании. Работы проводились во всех помещениях второго этажа. После их завершения общая площадь помещений незначительно уменьшилась. Однако за счет изменения конфигурации помещений собственник оптимизировал пространство, разместил дополнительные рабочие места и организовал место для обслуживания клиентов. Также два помещения после перепланировки были подготовлены к сдаче в аренду.
Читайте, какие решения предусматривал проект переустройства и перепланировки административного здания, что указали в документах специалисты ООО «Смарт Вэй», какие услуги были оказаны после завершения работ.
Как перепланировка может увеличить полезную площадь помещений и здания: цели заказчика
У каждого помещения есть определенные технические параметры, которые влияют на эффективность его использования. Это касается и полезной площади, планировки объекта. В 2020 году специалисты ООО «Смарт Вэй» выполнили работы по заданию собственника административного здания в Москве. Он преследовал следующие цели:
- сделать перепланировку во всех помещениях второго этажа;
- изменить конфигурацию помещений таким образом, чтобы перераспределить рабочие места сотрудников из разных отделов;
- упростить доступ через вспомогательные помещения второго этажа за счет расширения дверных проемов;
- изменить схему размещения систем отопления и вентиляции;
- сделать перепланировку одного из помещений под клиентскую службу (прием посетителей).
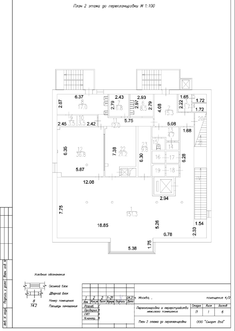
На момент обращения 2 помещения второго этажа не использовались по прямому назначению под офисы. Из-за особенностей расположения коридора и лестниц доступ туда был существенно затруднен. После перепланировки эти проблемы устранялись, а организация сможет разместить в помещениях дополнительные 6 рабочих мест.
Отметим, что в ходе предварительных обследований специалисты ООО «Смарт Вэй» установили ненадлежащее техническое состояние инженерных систем (отопление, вентиляция). Поэтому в проекте перепланировки были описаны и работы по переустройству. Они заключались не только в изменении схемы систем, но и в модернизации (замене) всего оборудования, труб, коробов.
Комментарий эксперта. При подготовке технического задания проектировщики могут предложить заказчику разные варианты решений. В данном кейсе клиенту было предложено изменить первоначальный замысел по объединению двух помещений. Это было нерационально сразу по нескольким причинам. В итоге, собственник наглядно увидел изменения по изначальному и новому плану работ, дал согласие на разработку соответствующих решений.

Техническое задание на перепланировку
ТЗ оформляется на начальном этапе сотрудничества. Обычно специалисты «Смарт Вэй» оказывают помощь в подготовке документа, так как это упрощает дальнейшую работу. В данном кейсе техническое задание включало:
- требования к составу и содержанию документов на перепланировку (проект, техзаключение);
- общее описание решений по перепланировке и переустройству;
- требования заказчика к характеристикам материалов, оборудования;
- описание документов, которые будут оформлены после завершения перепланировки;
- услуги по обеспечению пожарной безопасности.
Вместе с ТЗ заказчик передал специалистам ООО «Смарт Вэй» сведения о количестве сотрудников и служб организации, о местах их размещения на этаже. Эту информацию проектировщики учли при выборе и обосновании проектных решений.
Дополнительные услуги ООО «Смарт Вэй» для заказчика
В штате нашей компании есть специалисты и эксперты разного профиля, в том числе в сфере пожарной безопасности. Это позволяет предлагать клиентам большой объем дополнительных услуг. В данном кейсе договор с заказчиком предусматривал:
- проверки (аудит) по нормам пожарной безопасности (с учетом решений по перепланировке);
- оформление комплекта документов по пожарной безопасности (приказы, инструкции, положения, правила и т.д.);
- оформление планов эвакуации (с учетом новой конфигурации основных и вспомогательных помещений на этаже).
Также отметим, что мероприятия по обеспечению пожарной безопасности были указаны и в соответствующем разделе проекта перепланировки. Например, они касались характеристик отделочных и строительных материалов, требований к проведению работ в помещениях административного здания.
Рассчитайте стоимость заранее и получите коммерческое!
Воспользуйтесь нашим удобным онлайн-калькулятором, чтобы узнать ориентировочную цену услуг.
Заполнить!
Оформление документов на перепланировку
Обращаясь в ООО «Смарт Вэй», вы можете быть уверены, что все оформленные документы будут соответствовать нормативным актам. Так как проводилась перепланировка нежилого помещения в административном здании, для разработки проекта специалисты применяли:
- Жилищный кодекс РФ (скачать);
- Федеральный закон № 384-ФЗ (скачать);
- Федеральный закон № 123-ФЗ (скачать);
- СП 118.13330.2012 Общественные здания и сооружения (скачать);
- СП 54.13330.2016 Здания жилые многоквартирные (скачать);
- СП 59.13330.2016 Доступность зданий и сооружений для маломобильных групп населения (скачать);
- Постановление Правительства Москвы № 508-ПП (скачать);
- Постановление Правительства Москвы № 432-ПП (скачать);
- Приказ Росреестра № П/0082 (скачать).
Под отдельные проектные решения и мероприятия при перепланировке были выбраны и другие нормативные, технические акты. Полный перечень руководящих документов был указан в разделе 3.2 проекта.
Исходные данные на административное здание, помещения второго этажа
До начала работ были изучены исходные данные о технических характеристиках административного здания, помещения. Приведем самые важные сведения:
Рассчитайте стоимость заранее и получите коммерческое!
Воспользуйтесь нашим удобным онлайн-калькулятором, чтобы узнать ориентировочную цену услуг.
Заполнить!- нежилое здание 2006 года постройки;
- 3 этажа, в том числе 1 подземный;
- площадь помещений второго этажа (до начала перепланировки) – 322.2 кв. м.;
- наружные стены – крупноблочные;
- внутренние несущие стены, опоры и перекрытия – железобетонные;
- пространственная жесткость – достаточная;
- состояние здания по наружному виду – удовлетворительное;
- перегородки – ГКЛ на металлокаркасе.
До начала работы с проектом специалисты ООО «Смарт Вэй» обязательно выезжают на обследования. На месте было установлено, что фактическое состояние конструкций и систем позволяет выполнить перепланировку. Как указывалось выше, обследование показало ненадлежащее техническое состояние элементов систем отопления и вентиляции. Это было учтено при проектировании.

Проектные решения
Решения по изменению планировки помещений были описаны в разделе 5 проекта. Специалисты ООО «Смарт Вэй» предусмотрели следующие виды работ:
- демонтаж коробов, сантехнического оборудования;
- демонтаж арочного проема между двумя комнатами;
- демонтаж стен между разными комнатами на этаже;
- демонтаж дверного полотна;
- устройство сантехнического оборудования, коробов;
- обшивка стен;
- возведение перегородок с дверными блоками;
- обустройство стеклянных перегородок с дверным блоком (для помещения службы работы с клиентами).
Для сокрытия труб и коммуникаций в трех комнатах была выполнена инсталляция из коробов. Это позволило сохранить деловой стиль дизайна офисных помещений.
Решения на работы с инженерным и сантехническим оборудованием были изложены в разделе 3.5 проекта перепланировки. Также был подготовлен раздел 3.6 «Противопожарные мероприятия», комплект графических материалов.
Рассчитайте стоимость заранее и получите коммерческое!
Воспользуйтесь нашим удобным онлайн-калькулятором, чтобы узнать ориентировочную цену услуг.
Заполнить!Проект, техническое заключение
ООО «Смарт Вэй» имеет право оформлять проектную документацию на перепланировку, так как состоит в СРО (выписка о членстве были приложена к проекту). Так как работы проводились в нежилом (административном здании), наша компания имела полномочия на оформление технического заключения. Этим документом подтверждалась допустимость и безопасность перепланировки, исходя из реального состояния конструкций, инженерных систем. Читайте на нашем сайте о том, когда и как оформляется техническое заключение.
Особенности согласования
Прядок получения разрешений на перепланировку зависит от того, где будут проводиться работы. Максимально строгие правила действуют для согласования проекта на перепланировку в помещениях МКД. В этом случае пришлось бы подавать документы в жилинспекцию. Но так как оформлялся проект перепланировки для нежилого здания, то обращение в МЖИ не требуется.
Также в данном кейсе не потребовалось разрешение от Москомархитектуры. Это ведомство участвует в согласовании работ, меняющих внешний вид фасадов (например, при обустройстве или демонтаже входной группы). Проект не предусматривает изменения фасадных решений, поэтому дополнительных разрешений не нужно.
Комментарий эксперта. Сопровождение согласований в различных ведомствах входит в перечень услуг ООО «Смарт Вэй». Мы не только подготовим и направим все необходимые документы, но и получим готовое разрешение. Если возникнут основания для приостановки, наши специалисты устранят их, либо подадут жалобу. Подробнее об услугах по согласованию перепланировок читайте в нашем материале.

Список полезных документов
Документы для скачивания:
| Ссылки | Описание |
| Ссылка | Образец технического заключения |
| Ссылка | Образец акта межведомственной комиссии |
| Ссылка | Образец технического плана |
| Ссылка | Образец проекта перепланировки |
| Ссылка | Образец заявления о согласовании перепланировки |
| Ссылка | Заявление о проведении кадастрового учета |
| Ссылка | Образец технического паспорта |
| Ссылка | Образец технического задания о перепланировке |
Оформление документов после завершения перепланировки
Работы по проекту выполнила подрядная организация, состоящая в профильной СРО. Договор с подрядчиком заключал собственник здания. В процессе работы на объекте подрядная организация взаимодействовала с проектировщиками ООО «Смарт Вэй». Речь шла об уточнении отдельных решений и мероприятий, изложенных в проектной документации.
Рассчитайте стоимость заранее и получите коммерческое!
Воспользуйтесь нашим удобным онлайн-калькулятором, чтобы узнать ориентировочную цену услуг.
Заполнить!Технический план
Договор с заказчиком предусматривал оформление технического плана. Документ нужен, чтобы внести в ЕГРН новые сведения о планировке помещений. На момент выполнения работы форма техплана была утверждена Приказом МЭР № 953. Отметим, что на 2024 год применяется уже новая форма документа по Приказу Росреестра № 0082/П.
Для заполнения техплана кадастровый инженер ООО «Смарт Вэй» выезжал на место для обследований и замеров. Эти работы проводятся, чтобы собрать данные о фактической конфигурации основных и вспомогательных помещений на этаже административного здания. Помимо общих сведений о здании и помещениях, в техплане было указано следующее:
- сведения о планировке после завершения строительных работ по проекту;
- информация о средствах измерения (дальномер лазерный);
- сведения о площади помещения после перепланировки – 318.3 кв. м.;
- заключение с обоснованием изменения площади, описании порядка ее определения.
Техплан состоит из текстовой и графической части. Графические материалы включали поэтажный план. Там инженер описал конфигурацию помещений с отображением на схеме этажа. В общей сложности, на обмеры и оформление документа ушло 3 дня.
Комментарий эксперта ООО «Смарт Вэй». Техплан изготавливается в электронной форме, если иное не предусмотрено договором. Инженер ООО «Смарт Вэй» сам направляет его в Росреестр с удостоверением ЭЦП. Это сокращает сроки на прохождение кадастрового учета с обновлением сведений ЕГРН.

Документы по пожарной безопасности
В соответствии с условиями договора, эксперты ООО «Смарт Вэй» подготовили следующие документы по пожарной безопасности:
- планы эвакуации (там была учтена новая конфигурация помещений второго этажа);
- правила и инструкции для персонала организации на случай пожара;
- правила пожарной безопасности для посетителей;
- приказы о назначении лиц, отвечающих за противопожарную безопасность.
После завершения перепланировки была проверена работоспособность систем противопожарной защиты (сигнализация, пожаротушение, СОУЭ). Все характеристики соответствовали нормативам. Поэтому внесение изменений в схемы указанных систем не потребовалось.
Рассчитайте стоимость заранее и получите коммерческое!
Воспользуйтесь нашим удобным онлайн-калькулятором, чтобы узнать ориентировочную цену услуг.
Заполнить!Сопровождение кадастрового учета в Росреестре
В ЕГРН должны быть отражены реальные данные о характеристиках и планировке помещений. В данном кейсе сведения реестра были обновлены на основании технического плана, представленного нашими специалистами. Особенности процедуры:
- госпошлина за учет в Росреестре не уплачивается;
- так как техплан был представлен по каналам электронного документооборота, срок учета составил 5 рабочих дней;
- после завершения процедуры ведомство выдало выписку из реестра ЕГРН (документ был направлен в электронном виде).
В ходе проверки техплана Росреестр вынес уведомление о приостановке. Это встречается достаточно часто, даже если речь не идет о нарушениях при подготовке документов. Инженер ООО «Смарт Вэй» устранил замечания по уведомлению в течение 1 дня. После этого процедура была продолжена по общим правилам.

Сроки и стоимость услуг ООО «Смарт Вэй»
Проект и техзаключение на перепланировку в административном здании были оформлены в течение 7 дней. Это полностью соответствовало условиям договора с заказчиком. Подготовка техплана заняла 3 дня. Сами строительные работы на втором этаже здания длились 2 недели. На оформление документов по пожарной безопасности ушло 2 дня.
Стоимость работ и оформления документов для перепланировки указывается в договоре. Это конфиденциальные сведения, которые мы не можем публиковать без разрешения заказчика. Но вы можете посмотреть примерные расценки на наши работы и услуги в таблице ниже.
| № п/п | Услуга, документ | Стоимость |
| 1 | Проектирование перепланировки | от 12000 руб. (зависит от площади и особенностей объекта, вида работ) |
| 2 | Сопровождение согласования и узаконивания перепланировки | от 10000 руб. |
| 3 | Изготовление технического плана | от 8000 руб. |
| 4 | Сопровождение процедуры кадастрового учета в Росреестре или МФЦ | от 12000 руб. |
| 5 | Проектирование реконструкции | от 35000 руб. |
Заключение
- Подведем итог. По заданию заказчика был оформлен комплект документов для перепланировки на втором этаже административного здания. Он включал проект и техническое заключение, а после завершения работ – техплан.
- По результатам перепланировки собственник смог перераспределить рабочие места для сотрудников, упростить доступ в помещения, обеспечил размещение клиентской службы для приема посетителей.
- Дополнительной услугой для заказчика стало оформление комплекта документов по пожарной безопасности – планы эвакуации, приказы, положения, инструкции.
- Заключительный этап работы включал сопровождение учета в Росреестре. Представитель ООО «Смарт Вэй» получил выписку ЕГРН, передал ее заказчику.
Если вам нужна помощь в оформлении и согласовании документов на перепланировку, обращайтесь в ООО «Смарт Вэй»!
Рассчитайте стоимость заранее и получите коммерческое!
Воспользуйтесь нашим удобным онлайн-калькулятором, чтобы узнать ориентировочную цену услуг.
Заполнить!Список использванной литературы
- Жилищный кодекс РФ (скачать);
- Федеральный закон № 384-ФЗ (скачать);
- Федеральный закон № 123-ФЗ (скачать);
- СП 118.13330.2012 Общественные здания и сооружения (скачать);
- СП 54.13330.2016 Здания жилые многоквартирные (скачать);
- СП 59.13330.2016 Доступность зданий и сооружений для маломобильных групп населения (скачать);
- Постановление Правительства Москвы № 508-ПП (скачать);
- Постановление Правительства Москвы № 432-ПП (скачать);
- Приказ Росреестра № П/0082 (скачать).







