Год выполнения работ: 2021 г.
Адрес объекта: г. Москва, Ярославское шоссе, д. 12, корпус 2
Заказчик работ: собственник квартиры
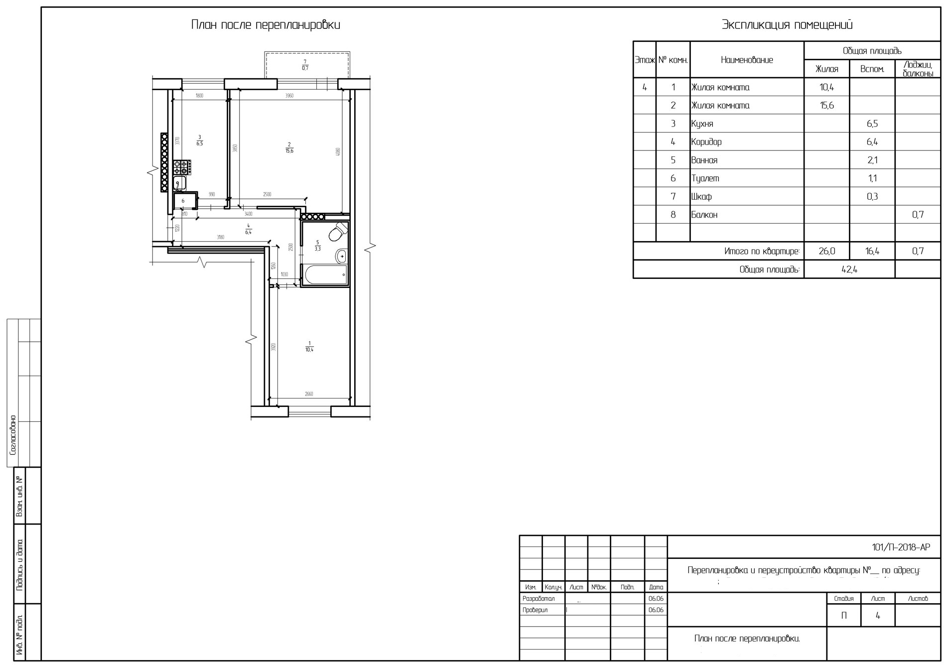
Площадь объекта: 42,4 м.кв.
Исполнитель работ: ООО «Смарт Вэй»
Срок выполнения работ с согласованием в МЖИ: 50 рабочих дней
Подготовка проекта перепланировки: 5 рабочих дней
Задача от заказчика
В двухкомнатной квартире, которую занимает собственник, прежние владельцы сделали перепланировку. Она не была согласована в Мосжилинспекции (МЖИ), как требуется по Жилищному кодексу РФ, Постановлению Правительства Москвы № 508-ПП. Наличие неузаконенной перепланировки было выявлено при обращении в банк, чтобы оформить на квартиру залог при получении кредита.
Рассчитайте стоимость заранее и получите коммерческое!
Воспользуйтесь нашим удобным онлайн-калькулятором, чтобы узнать ориентировочную цену услуг.
Заполнить!Кредит на 3 00 000 рублей нужен собственнику для развития бизнеса. Поэтому он принял решение в ускоренном порядке узаконить перепланировку, внести изменения в технический паспорт МосгорБТИ, в сведения ЕГРН.
С этой целью нужно:
- получить проект и техническое заключение о безопасности работ для несущих конструкций;
- пройти узаконивание выполненной перепланировки в МЖИ;
- обратиться в МосгорБТИ, чтобы внести изменения в технический паспорт;
- оформить технический план и обратиться в Росреестр, чтобы внести изменения в ЕГРН.
Только после прохождения указанных процедур собственник сможет рассчитывать на положительное решение банка по кредиту на 2 000 000 рублей.
Рассчитайте стоимость заранее и получите коммерческое!
Воспользуйтесь нашим удобным онлайн-калькулятором, чтобы узнать ориентировочную цену услуг.
Заполнить!Так как кредитные средства нужны срочно, собственник планировал получить документы и узаконить перепланировку в максимально сжатый срок. После изучения предложений по подготовке документов и согласованиям он сделал выбор в пользу ООО «Смарт Вэй».
Почему обратились к “Смарт Вэй”
Узаконивание выполненной перепланировки – сложная процедура. МЖИ даст разрешение на узаконивание, если подтвердить полную безопасность работы. Нередко чиновники выносят отказ по документам, что может потребовать обращение в суд. У ООО «Смарт Вэй» было несколько кейсов по аналогичным делам. После их изучения и консультации со специалистами «Смарт Вэй», собственник заключил договор на подготовку документов и узаконивание перепланировки «под ключ».
Выделим несколько преимуществ сотрудничества с ООО «Смарт Вэй», которые отметил заказчик:
- большой опыт взаимодействия с МЖИ, МосгорБТИ (с 2013 года);
- наличие положительной судебной практики по оспариванию отказов и приостановок МЖИ, Росреестра;
- сжатые сроки оформления документов (до 7 дней).
На срок проверки документов в МЖИ повлиять сложно. Но если представить проект и техническое заключение без ошибок, то оснований для отказов и приостановок не возникнет.
Рассчитайте стоимость заранее и получите коммерческое!
Воспользуйтесь нашим удобным онлайн-калькулятором, чтобы узнать ориентировочную цену услуг.
Заполнить!Что было сделано специалистами компании
Так как дополнительные работы в квартире собственник не планировал проводить, специалисты «Смарт Вэй» должны проанализировать фактическое состояние конструкций и инженерных сетей.
До выезда на место были запрошены и изучены документы:
- технический паспорт БТИ (там указаны характеристики квартиры до выполнения перепланировки);
- выписка ЕГРН (ее специалисты запросили самостоятельно через профессиональное программное обеспечение);
- договор купли-продажи (там были указаны характеристики квартиры на момент сделки).
Для подготовки проекта и технического заключения специалисты «Смарт Вэй» выехали на место, провели осмотр, обследование и обмеры в квартире. Также была сделана фотофиксация по фактическому состоянию квартиры.
В ходе обследования было установлено, что неузаконенная перепланировка включала разбор части несущей стены и расширение дверного проема между комнатами. Это могло повлечь ухудшение несущей стены. Специалисты «Смарт Вэй» обследовали стену на предмет трещин и повреждений, сделали расчеты по несущей способности. Согласно выводам специалистов, несущая способность стены не ухудшилась, а работы не повлекли угрозу прочности. Это было отражено в техническом заключении.
Рассчитайте стоимость заранее и получите коммерческое!
Воспользуйтесь нашим удобным онлайн-калькулятором, чтобы узнать ориентировочную цену услуг.
Заполнить!Проект и техническое заключение были переданы заказчику через 5 рабочих дней. После этого документы были направлены на узаконивание в МЖИ. Общий срок рассмотрения документов составил 45 дней.
Так как в техническом заключении была подтверждена безопасность выполненной перепланировки, МЖИ вынесла положительное решение. Обращение в суд в данном случае не потребовалось.
После получения решения МЖИ собственник обратился в МосгорБТИ, внес изменения в технический паспорт. Также после обращения в Росреестр были внесены изменения в ЕГРН. В выписке ЕГРН, которую получил собственник, были указаны уже реальные характеристики квартиры после перепланировки.
Результаты работы
По итогам работы специалисты «Смарт Вэй» передали заказчику:
- проект перепланировки и переустройства квартиры;
- техническое заключение о допустимости работ;
- технический план для внесения изменений в ЕГРН.
На основании указанных документов собственник успешно прошел узаконивание в МЖИ, внес изменения в технический паспорт и сведения ЕГРН.
Рассчитайте стоимость заранее и получите коммерческое!
Воспользуйтесь нашим удобным онлайн-калькулятором, чтобы узнать ориентировочную цену услуг.
Заполнить!Благодаря профессионализму и высокой квалификации специалистов ООО «Смарт Вэй» собственник получил все необходимые документы для банка. Положительное решение по заявке позволило получить кредит на 3 000 000 рублей для развития бизнеса.
 
                    







