
Год выполнения работ: 2022 год;
Адрес объекта: г. Москва, проспект Андропова, д. 36;
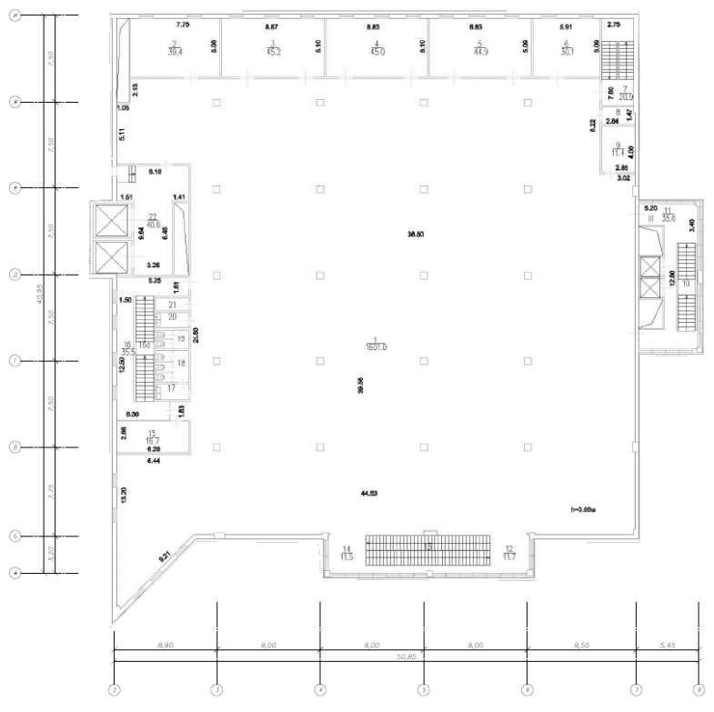
Площадь объекта: 2488 м.кв.;
Заказчик работ: владелец помещений в ТЦ;
Исполнитель работ: ООО «Смарт Вэй»;
Срок выполнения работ: 20 рабочих дней;
Подготовка технической документации: 19 рабочих дней.
Задача от заказчика
Заказчик, являясь владельцем помещения в торговом центре «Гвоздь», сдает свое имущество в аренду. В марте 2022 года им было принято решение совершить внутреннюю перепланировку помещения, а также заменить ряд стандартных окон на панорамное остекление, открывающее завораживающий вид на Москву. Всё это сделает помещение более привлекательным для арендаторов, а значит, принесет его владельцу больше прибыли.
Для этого необходимы следующие документы:
Рассчитайте стоимость заранее и получите коммерческое!
Воспользуйтесь нашим удобным онлайн-калькулятором, чтобы узнать ориентировочную цену услуг.
Заполнить!- проект перепланировки нежилого помещения;
- техническое заключение о допустимости и безопасности проведения ремонтно-строительных работ;
- проект частичного изменения фасадов нежилого помещения;
- технический план помещения.
Почему обратились к «Смарт Вэй»
Особое внимание было акцентировано на скорости и качестве выполнения работ. Для заказчика было важно получить результат как можно скорее, поскольку длительное ожидание грозило большими финансовыми потерями.
Преимущества ООО «Смарт Вэй», заинтересовавшие заказчика:
- ООО «Смарт Вэй» гарантирует подготовку и оформление проектно-технической документации в максимально сжатые сроки;
- ООО «Смарт Вэй» оформляют проектную и техническую документацию с 2013 года, знают все нюансы работы с нежилыми помещениями;
- специалисты компании работают в строгом соответствии с действующими нормативно-правовыми актами, что позволяет избежать приостановления регистрации в 95% случаев. Даже при получении приостановления инженеры «Смарт Вэй» знают, как действовать, чтобы процесс не затянулся.
Рассчитайте стоимость заранее и получите коммерческое!
Воспользуйтесь нашим удобным онлайн-калькулятором, чтобы узнать ориентировочную цену услуг.
Заполнить!Что было сделано специалистами компании
Для подготовки проекта перепланировки и технического плана специалистами «Смарт Вэй»:
- Был организован выезд техников-инвентаризаторов на объект. На объекте были проведены замеры помещения, зафиксированы все произведенные изменения в ходе перепланировки, составлен абрис полевых работ и совершена фотофиксация объекта.
- Изготовлен проект перепланировки и техническое заключение о допустимости работ.
- Изготовлен проект частичного изменения фасадов нежилого помещения.
- Изготовлен технический план для учета изменений после перепланировки.
- Технический план был зарегистрирован в Росреестре кадастровым инженером ООО «Смарт Вэй».
Кадастровые инженеры ООО «Смарт Вэй» имеют огромный опыт взаимодействия с Росреестром. Технический план изготавливается в строгом соответствии с Приказом Минэкономразвития России №953, также учитывается опыт регистрации других объектов, изучение предыдущих приостановлений и отказов.
Это позволило изготовить технический план всего за 1 рабочий день, а уже через 11 рабочих дней произведенная перепланировка прошла кадастровый учет и отражалась в выписке из ЕГРН.
Рассчитайте стоимость заранее и получите коммерческое!
Воспользуйтесь нашим удобным онлайн-калькулятором, чтобы узнать ориентировочную цену услуг.
Заполнить!
пп
Рассчитайте стоимость заранее и получите коммерческое!
Воспользуйтесь нашим удобным онлайн-калькулятором, чтобы узнать ориентировочную цену услуг.
Заполнить!Результаты работы
Для заказчика было крайне важно получить результат в максимально сжатые сроки.
Специалисты ООО «Смарт Вэй» успешно справились с этой задачей, а именно:
- обмерные работы помещения выполнены за 1 рабочий день;
- проект перепланировки подготовлен за 7 рабочих дней;
- техническое заключение подготовлено за 7 рабочих дней;
- проект частичного изменения фасадов выполнен за 3 рабочих дня;
- технический план подготовлен за 1 рабочий день.
Технический план был передан кадастровым инженером «Смарт Вэй» на регистрацию в Росреестре посредством электронных сервисов и был зарегистрирован в течение 10 рабочих дней без приостановок. Уже на следующий день после регистрации заказчик получил новую выписку на свое помещение.
Заказчик остался доволен результатом работы и теперь сможет заключать более выгодные сделки с арендаторами своего помещения, получая большую прибыль, а специалисты ООО «Смарт Вэй» помогут с их регистрацией.








