Год выполнения работ: 2019 г.;
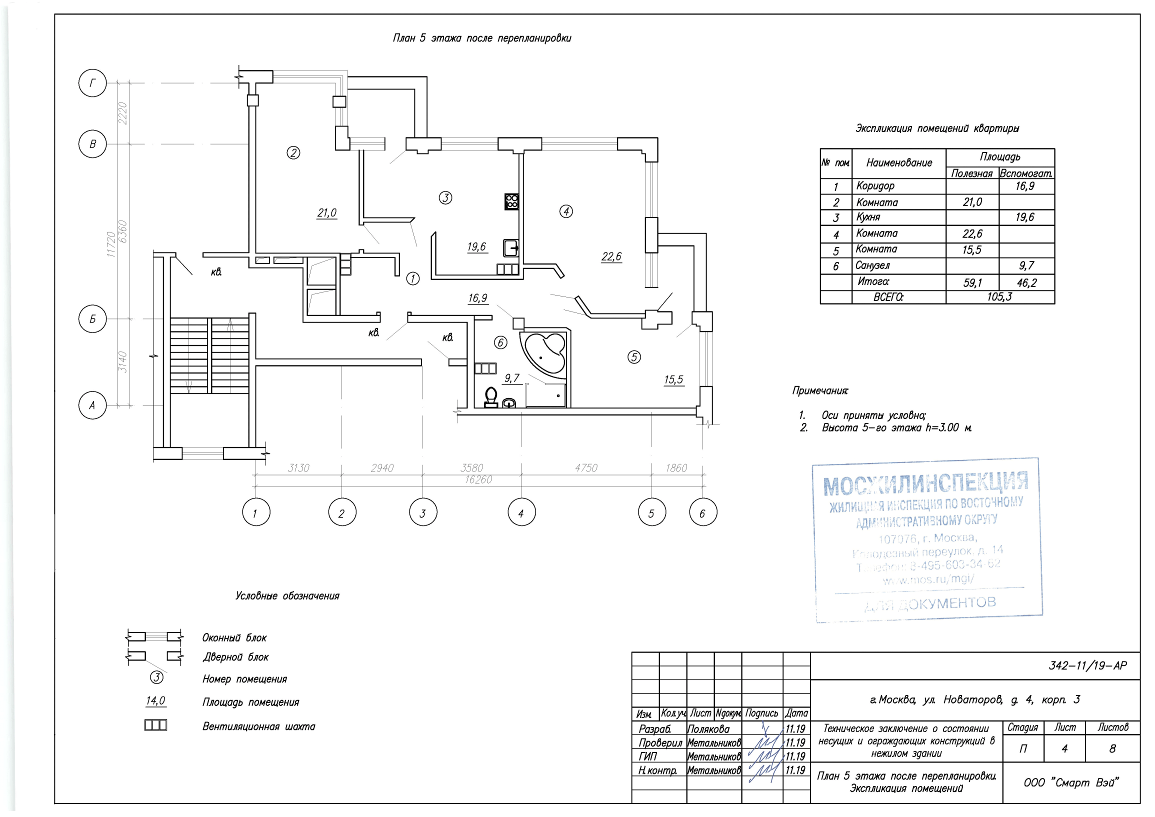
Адрес объекта: г. Москва, улица Новаторов, 4к3;
Площадь объекта: 105,3 м.кв.;
Заказчик работ: Антонов В.А.;
Исполнитель работ: ООО «Смарт Вэй»;
Срок выполнения работ: 40 рабочих дней;
Подготовка технической документации: 10 рабочих дней;
Очень часто для комфортности проживания в квартире возникает необходимость проведения ее перепланировки, включающей в себя: расширение зоны кухни, изменение габаритов комнат, для размещения необходимой мебели и многое другое.
Стоит отметить, что самовольная перепланировка недопустима, и собственник квартиры несет ответственность за жизнь и здоровье людей при производстве несогласованных работ, оказывающих влияние на конструктивные элементы жилого дома. Помимо этого, самовольная перепланировка грозит собственнику квартиры штрафом, а также ограничением выезда за границу, кроме того, необходимо возвращение планировки в первоначальный вид, что бывает гораздо затратно, чем подготовка и согласование технической документации.

С целью согласования перепланировки своей квартиры Вадим Александрович заключил договор с экспертом в данной области — ООО «Смарт Вэй».
Рассчитайте стоимость заранее и получите коммерческое!
Воспользуйтесь нашим удобным онлайн-калькулятором, чтобы узнать ориентировочную цену услуг.
Заполнить!Получив всю необходимую исходную техническую документацию от заказчика, квалифицированные специалисты ООО «Смарт Вэй» выявили, что вариант планировки, заявленный как желаемый собственником квартиры, нарушает некоторые требования строительных и санитарно-гигиенических норм для многоквартирных домов, в том числе, пункт 9.22 СП 54.13330.2016 «Здания жилые многоквартирные» вносящий запрет на размещение ванных комнат над кухнями, что в свою очередь, согласно пункту 10.9 Постановления Правительства Москвы от 25 октября 2011 года № 508-ПП «Об организации переустройства и (или) перепланировки жилых и нежилых помещений в многоквартирных домах и жилых домах» недопустимо.

С учетом вышеизложенного, экспертами ООО «Смарт Вэй» разработан вариант планировки, удовлетворяющий пожеланиям заказчика и требованиям строительных и санитарно-гигиенических норм.
Далее произведено визуальное обследование и обмеры квартиры, с целью составления абриса и подготовки технического заключения о состоянии несущих и ограждающих конструкций, на основании которых разработан проект перепланировки и переустройства квартиры.
Рассчитайте стоимость заранее и получите коммерческое!
Воспользуйтесь нашим удобным онлайн-калькулятором, чтобы узнать ориентировочную цену услуг.
Заполнить!
Сброшюрованный, с приложением всей необходимой исходно-разрешительной документацией, проект перепланировки и переустройства квартиры направлен на согласование в адрес Государственной жилищной инспекции города Москвы.

Экспертами ООО «Сматр Вэй» в течении 30 дней получено согласование с Мосжилинспекцией проектной документации, что подтверждает ее соответствие всем требованиям строительных, санитарно-гигиенических, эксплуатационных норм и правил пожарной безопасности для многоквартирных домов, и дает собственнику разрешение на проведение строительно-монтажных работ по перепланировке квартиры, без угрозы штрафных санкций, а также без угрозы жизни и здоровью людей, при соблюдении всех требований, предусмотренных проектной документацией.


В завершении проведения строительно-монтажных работ по перепланировке квартиры ООО «Смарт Вэй» получен акт о завершенном переустройстве и перепланировке помещения в многоквартирном доме, утвержденный уполномоченным лицом Мосжилинспекции, позволяющий внести изменения в сведения Единого государственного реестра недвижимости.







